Hellum Byvej 5, Hellum ,
9520 Skørping
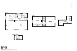
Masser af charme og god atmosfære følger med dette solide og velholdte rødstenshus med tag af skiftereternit. Huset er opført i 1954 - har fået nye vinduer/døre i 2021 - er skønt og ugenert beliggende på 961 m2 grund i roligt villakvarter midt i Hellum - få skridt til byens fællesareal med udendørs træningsanlæg, petanque-bane m.v. og cykelafstand til Madum Sø (badesø), Langmosen og Hellum Skov. Boligarealet udgør 102 m2 - heraf 64 m2 i stueplan, som indeholder: Vindfang med terrazzogulv og dør til forstue med flot trætrappe til 1. sal og dør til lille viktualiekælder. Originalt badeværelse med terrazzogulv, hvide vægfliser, indmuret kar med bruser og hvid sanitet. Stor og lys opholdsstue med askeparketgulv (gulvvarme) og åbent til hyggeligt køkken med lyst vinylgulv, hvidmalet rustikloft - vinduesparti med udgang til skøn og sydvendt bred trætrappe som forvandles til træterrasse i niveau med den ugenerte have - køkkenelementer med hvide låger, hårdttræsbordplade - opvaskemaskine, køleskab, gaskomfur og emhætte - ved komfuret sorte granitbordplader.
1. sal udgør 38 m2 - har originale, men afslebne, fyrretræsgulve og originale indbyggede skabe med teaktræslåger, hvidmalede lofter, og indeholder: Repos, 2 gode gavlværelser og skunkrum.
Under den støbte trappe til fordøren er der trappe til 18 m2 vaske- og teknikkælder med nyere luft til vand varmepumpe og vaskesøjle.
48 m2 fritstående garage/udhus - opført i 1935 som byens smedje - opført i blokke, som er pudsede og rødmalet med eternittag. Udendørs og indendørs hane i bygningen - og stor skydeport til garagen.
SOLID CHARME UDE OG INDE - FREMSTÅR SUNDT, LYST OG INDFLYTNINGSKLART!!
Hellum er en velfungerende landsby med et godt sammenhold, fællesareal med gode aktiviteter, fællesspisning m.v. - skøn natur og kun 4 km. til stationsbyen Skørping.
Skal du have solgt først?
Jeg tilbyder en gratis og uforpligtende salgsvurdering af din bolig!