Øsbygade 48,
6100 Haderslev
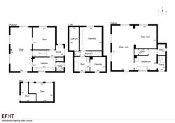
Velkommen til Øsbygade 48 i Haderslev – en charmerende og lys villa. Med i alt 120 kvm bolig fordelt på to etager, suppleret af 45 kvm kælder, får I her en bolig med en rigtig fin planløsning, hvor der er tænkt på både fællesskab og privatliv.Når I træder indenfor, mødes I af en indbydende entré, der leder jer ind i det lyse opholdsmiljø. Stuen er husets naturlige samlingspunkt, hvor vinduespartierne lader dagslyset strømme ind. Køkkenet er veludnyttet og funktionelt med god plads til madlavningen.
På husets 1. sal finder I boligens private afdeling med gode værelser, der nemt kan tilpasses jeres behov, hvad enten det er soveværelse, børneværelse eller et hjemmekontor.
Kælderen på 45 kvm er et stort aktiv. Her er der indrettet vaskerum og disponible rum, som giver jer masser af fleksibilitet til opbevaring, hobbyaktiviteter eller værksted. Det er kvadratmeter, der virkelig gør en forskel i hverdagen.
Udenfor får I en hyggelig grund med en god have, hvor I kan trække jer tilbage, slappe af eller invitere til grillhygge. Et tilhørende skur giver jer plads til opbevaring af cykler og haveredskaber, så alt er pænt og ryddeligt.
Øsbygade 48 er en villa med en god base og et varmt hjemligt udtryk, der står klar til at byde nye ejere velkommen. Det er en ejendom, der skal opleves – her får I virkelig værdi for pengene og en ramme, I kan gøre til jeres helt egen.
Skal du have solgt først?
Jeg tilbyder en gratis og uforpligtende salgsvurdering af din bolig!