Strandsletten 19, Gjerrild,
8500 Grenaa
Beliggende for enden af blind vej i nyere udstykning i Gjerrild, med nem adgang til stisystem til stranden, udbydes her et indbydende og moderne fritidshus fra 2022. Fra grunden har man et fint kig ned over de åbne landskaber og den rå natur der præger Gjerrild. Huset er særdeles energivenligt, og en varmepumpe forsyner huset med vandbåren gulvvarme i hele beboelsen. Huset har en god indretning og med sine 103 kvadratmeter, to badeværelser og hems er her fint med plads til den store familie. Størrelse og indretning gør det desuden nemt at supplere økonomien med lidt udlejning, måtte man ønske det. Beliggenheden er idyllisk med kig til det åbne marklandskab med skovene og Gjerrild by i baggrunden.Her er et rigt dyreliv. Et paradis for naturelskeren, med masser af aktiviteter lige uden for døren. Gjerrild
Nordstrand byder på dejlig sandstrand og gode fiskerimuligheder, med de smukke klinter mod øst
indenfor nær rækkevidde. Her er mulighed for lange gå- og cykelture i de omkringliggende bøgeskove
eller nær Sostrup slot. Endvidere er naturstien langs Norddjurslands kyst et besøg værd. Gjerrild by
byder bl.a. på købmand og kromiljø, og her er kort afstand til handelsbyen Grenaa.
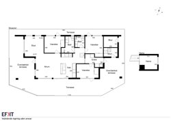
Huset indeholder:
Entré med vaskesøjle. Lyst køkken/opholdsrum med lofter i kip. Stue i åben forbindelse med opholdsrum, og med lækker udsigt til naturen ud ad de store vinduespartier. Tre regulære soverum. To badeværelser, begge med brus. Hems med ekstra plads til overnattende gæster. Integreret udhus/teknikrum med plads til det praktiske.
Huset er omkranset af stor træterrasse, og overdækkede arealer i begge ender af huset forlænger perioden man kan nyde udestunderne.
Et lækkert hus der skal opleves på en fremvisning! Kontakt os for nærmere info på 86387800.
Varme: Varmepumpe (luft til vand)
Vej: Privat/fælles
Vand: Privat/alment
Kloak: Offentlig
Udlejning: Novasol
Skal du have solgt først?
Jeg tilbyder en gratis og uforpligtende salgsvurdering af din bolig!