Benediktevej 11, Gjerrild,
8500 Grenaa
Er I på udkig efter et hyggeligt fritidshus? Sådan et rigtigt fritidshus der ikke er lider under nutidens moderne fornødenheder? Så har I her muligheden for at blive de nyere ejere af en lille perle af et sted - tilmed et helt utroligt velholdt et af slagsen! Her er tale om et super charmerende fritidshus, der løbende har set grundigt vedligehold og opdatering, blandt andet med tagpap med lister. Trods husets, på papiret, beskedne størrelse, er her fin plads til en familie og den skønne have byder på fin plads til leg og udfoldelser for store og små.Fritidshuset er roligt beliggende i bunden af blind vej med nem adgang til stranden og den rå natur der kendetegner Gjerrild Nordstrand. Her er rig mulighed for en forfriskende dukkert i havet eller en fisketur langs de naturskønne klinter.
Området omkring Gjerrild er kendetegnet ved de omkringliggende bøgeskove, Sostrup slot og fra fritidshuset er der blot 3 km ad den smukke natursti langs havet til Bønnerup, der byder på et hyggeligt havnemiljø med lokale butikker, fiskehandler, isbod og restaurant.
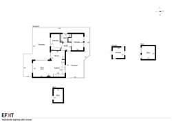
Huset indeholder:
Entré, to regulære værelser, badeværelse med brus samt køkken/opholdsrum med opdelt spiseafdeling og stue. Her er brændeovn og udgang til skønne terrasser på begge sider af huset. Foruden hovedhuset finder man flere gode udhuse, hvoraf det ene tjener som "gæsteanneks" med ekstra disponibel plads til overnattende gæster.
Pak tasken, find brætspillene og strikketøjet frem - her kommer I helt ned i gear!
Kunne du også have interesse i dette skønne hus? Ring til os for en uforpligtende fremvisning på 86387800.
Opvarmning: El-varme + brændeovn
Vej: Privat/fælles
Vand: Privat/alment
Kloak: Offentlig
Udlejning: Ej tilmeldt udlejning - her kan du holde din sommerferie!
Skal du have solgt først?
Jeg tilbyder en gratis og uforpligtende salgsvurdering af din bolig!