Byparken 46,
8961 Allingåbro
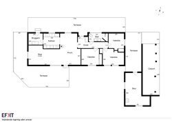
I et skønt villakvarter centralt i Allingåbro by finder du denne indflytningsklare 1-plansvilla, som er beliggende for enden af en lukket vej. Villaen ligger på en overskuelig grund med en dejlig ugeneret have, som er nem at holde.Når du træder ind ad hoveddøren, kommer du først til en entré, som giver dig adgang til villaens øvrige rum. Dernæst kommer du til en rummelig vinkelstue med plads til såvel spise- som sofaområde. En brændeovn bidrager desuden til en hyggelig atmosfære i stuen, hvor du også har udgang til en skøn flisebelagt terrasse. Køkkenet er pænt og funktionelt med lyse elementer og god skabsplads. Der er ligeledes mulighed for at slå køkken og stue sammen til ét stort rum. Fra køkkenet har du adgang til et praktisk bryggers med plads til vaskefaciliteter - her finder du også villaens sekundære indgang. Herudover byder villaens planløsning på tre gode værelser med indbyggede skabe samt et flot og lyst badeværelse med gulvvarme og separat bruseniche. Der er ensartet klilkgulv i opholdsrummene med undtagelse af ét værelse.
Udemiljøet består - foruden den flisebelagte terrasse - af endnu et fantastisk terrasseområde, så du har mulighed for at placere dig alt efter vind og vejr. Herudover får du en carport med brændeskur samt et isoleret udhus, du kan benytte til opbevaring, værksted eller hvad end, du har behov for. Der er anlagt fliser langs villaens indgangsparti, mens selve indkørslen er anlagt med ral.
Villaen ligger rigtig godt i byen, hvilket betyder, at du har alle hverdagens fornødenheder lige udenfor døren. Forretninger er meget tæt på, og både skole og børnehave er inden for gåafstand, hvilket gør hverdagen nem og bekvem for børnefamilien.
Allingåbro er en by, der har det hele: udover skoler og børnehaver finder du en idrætshal, en golfbane og meget, meget mere. Byen byder på et aktivt lokalsamfund og gode fritidsmuligheder for alle aldre, alt sammen i trygge rammer.
Varme: Varmepumpe (luft/luft)
Vand: Alment vandforsyningsanlæg
Kloak: Afløb til til offentligt kloaksystem
Vej: Kommunevej
Skal du have solgt først?
Jeg tilbyder en gratis og uforpligtende salgsvurdering af din bolig!