Urbakkevej 4,
8450 Hammel
LIEBHAVEREJENDOM CENTRALT I HAMMEL MED 2.256 KVM. PARKLIGNENDE GRUNDAllerede ved første skridt ind i den fine hall, skabes det helt rigtige førstehåndsindtryk af denne pragtfulde liebhaverejendom. Den indbydende rumfornemmelse, det gennemstrømmende lysindfald, den åbne forbindelse mellem stuerne og den fine detalje med nedsænket stue sætter stemningen – et hus, der emmer af både plads, prægtighed og hjemlighed.
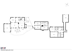
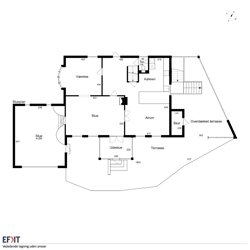
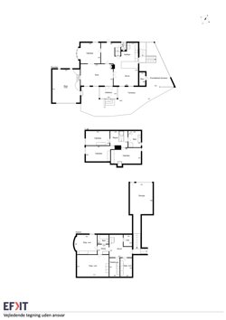
Fra hallen breder ejendommen sig videre med 332 m2 inklusiv flot kælder med store multirum, badeværelse og opbevaring. Fra garagen går I direkte og tørskoet ind her. Den elegante trappe leder os først op på 1. salen, hvor et rummeligt badeværelse med bruseniche samt tre værelser ligger. Det ene værelse har fantastisk udsigt over haven og de andre to over byen. Vi bevæger os ned i stueetagen, hvor der fra hallen er adgang til en afdeling med et toilet og et stort lyst kontor eller stue. Et flot køkkenalrum med gulve i sildeben og masser af bordplads giver plads til både familielivet og festlige sammenkomster. Den skønne stue med brændeovn giver adgang til terrasserne og haven, og ligger i sammenhæng med en hyggelig nedsænket stue, der tilsammen udgør hjemmets hjerte, og nogle helt igennem pragtfulde opholdsrum i ejendommen, hvor familien kan samles i dagligdagen såvel som ved store begivenheder og højtider.
Gennemgående for ejendommen er den gode stand og den fantastiske rumfornemmelse, som understreges af det behagelige lysindfald, der er overalt i hjemmet. Vi fortsætter udenfor, hvor den store grund breder sig som jeres private oase og et dejligt, uforstyrret frirum, hvor livet kan nydes under åben himmel. Haven er anlagt med super gode terrasser, der sikrer jer den bedste plads i solen uanset tidspunktet på dagen. Hele herligheden omkranses af tætte, høje træer og buske, der bidrager til udelivets stemning og privatliv. Den parklignende have har kirsebærtræ, flere æblesorter, brombær, vindruer, kastanjetræ med spisekastanjer og nøddetræer, som et par lokale egern lejlighedsvis besøger. Her findes ligeledes små stier hvor børnene kan lege gemmeleg og stor plæne til fodboldkampen. I kommer til at opleve hvordan udelivet forlænges i både foråret og efteråret, når hele familien slår sig ned under den kæmpestore overdækkede terrasse hvor I altid kan finde læ og udsigt.
Når I overtager nøglerne til ejendommen på Urbakkevej 4, så flytter I ind centralt i Hammel. En udbudsrig by, hvor I finder flere velassorterede handlemuligheder, et levende butiksliv og naturligvis skoler og daginstitutioner, og et ekstraordinært aktivt foreningsliv. Hammel GF blev i 2023 kåret af DIF til årets idrætsklub, hvor man udover de traditionelle idrætsgrene, også kan spille diskgolf, bordtennis, dart, gå til karate og har etableret et spritnyt, lækkert fitness- og padelcenter. Byen har det hele. Det bliver ikke bedre.
Velkommen hjem.
Skal du have solgt først?
Jeg tilbyder en gratis og uforpligtende salgsvurdering af din bolig!