Sundgården 1, Sundsøre,
7870 Roslev
Velkommen til Sundgården – et unikt boligprojekt i Sundsøre, hvor historien møder fremtiden. Her erstattes en tidligere firlænget gård af en moderne bebyggelse, skabt med respekt for områdets kultur og natur. Med en placering tæt på færgelejet og med panoramaudsigt over Limfjorden får du en hverdag, hvor vand, lys og natur bliver en del af dit hjem.Æblelunden bevares, de gamle kampesten genanvendes i landskabet, og husene placeres med fokus på lys, sol og udsigt. Arkitekturen tager udgangspunkt i egnens byggestil, og boligerne opføres i bæredygtige løsninger og træmaterialer, der smukt falder ind i de naturskønne omgivelser.
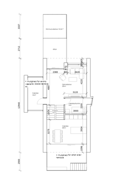
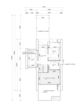
Boligerne bygges i to etager og kan tilpasses i størrelsen – fra 120 til 142 kvm – så du kan skabe præcis den planløsning, der passer til dig. På 1. sal etage finder du leverummet med køkkenalrum, stue, badeværelse og soveværelse – perfekt til at nyde den imponerende fjordudsigt fra sofaen eller terrassen. Nederste etage byder på værelser, badeværelse og entre direkte fra carporten. Der er tale om en sokkelgrund på 190-210 kvm afhængig af hvilket hus man køber. Der kan ske ændringer af byggeriet undervejs.
Området får grønne fællesarealer, fælleshus og hyggelige mødesteder, hvor naboer kan samles. Her bor du blot få skridt fra havnen, stranden, færgen til Hvalpsund og et aktivt friluftsliv. Kun 4 km væk ligger Thise med indkøb, skole, børnepasning og et stærkt lokalsamfund.
Sundgården er for dig, der ønsker at bo i et levende miljø med både privatliv og fællesskab – midt i
naturen og med fjorden som nærmeste nabo.
Sundsøre byder på aktiviteter og fællesskab med bla, Thise fællesskabet, som tilbyder motionsklub, rideklub og aktiviteter hen over året, såsom koncerter i forsamlingshuset og kirke, sommerfest, spisning i byparken og en aktiv idrætsforening.
💬 Kontakt os i dag 44 77 66 99, og vær med til at sætte dit personlige præg på din drømmebolig ved
Limfjorden.
Skal du have solgt først?
Jeg tilbyder en gratis og uforpligtende salgsvurdering af din bolig!