Kirsebærvej 40,
7800 Skive
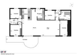
Indbydende og moderniseret familie villa med separat børne- og forældreafdeling – opført i højkvalitets materialer Velkommen til Kirsebærvej 40 – en skøn og løbende moderniseret villa fra 1979, der i dag fremstår lys, tidløs og særdeles indbydende. Boligens 153 m² er fordelt på en gennemtænkt planløsning med store opholdsrum, kvalitetsmaterialer og en klar opdeling mellem børne- og forældreafdeling, hvilket giver ideelle rammer for familie hverdagen.
Husets hjerte er det store, lyse alrum, der elegant hænger sammen med stuen og det tidløse køkken. De store vinduespartier skaber et behageligt lysmiljø og giver en naturlig forbindelse til terrassen og haven. Køkkenet er opført i solide, højkvalitets materialer og ligger centralt placeret med nem adgang til både alrum og bryggers.
Børneafdelingen ligger samlet i den ene del af huset og består af to gode værelser samt et badeværelse. Her får børnene deres egen trygge afdeling med kort afstand til hinanden.
I modsatte ende af boligen finder du forældreafdelingen, som består af et rummeligt soveværelse med eget badeværelse samt et ekstra værelse. Værelset har adgang direkte fra stuen og kan efter behov benyttes som kontor, hobbyrum eller endnu et børneværelse.
Udenfor venter en dejlig, solrig og vedligeholdelsesnem have på 910 m² med flere hyggelige kroge og en stor terrasse, der ligger perfekt i forlængelse af opholdsrummene. Her er rig mulighed for både afslapning og hyggelige stunder udendørs.
Ejendommen fuldendes med en rummelig carport på 48 m².
Alt i alt får du en lys, fleksibel og indflytningsklar familie villa i højkvalitets materialer med optimal værelsesfordeling og en skøn have – beliggende i et fredeligt og attraktivt kvarter i Skive.
Ring allerede i dag på tlf.: 44 77 66 99
Skal du have solgt først?
Jeg tilbyder en gratis og uforpligtende salgsvurdering af din bolig!