Kystvej 62, Egense,
9280 Storvorde
Velkommen til Kystvej 62 – rummelig familievilla med udsigt og skøn beliggenhed i EgenseDrømmer du om at bo tæt på vandet i rolige omgivelser – med masser af plads, både ude og inde? Så er Kystvej 62 i Egense det oplagte valg.
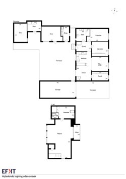
Ejendommen byder på 170 m² veldisponeret bolig, et hyggeligt udehus på 32 m² samt garage på 20 m², alt sammen beliggende på en stor grund på 1.320 m². Her får du rigeligt med albuerum, god plads til børneleg, haveprojekter eller bare ro og privatliv i grønne omgivelser.
Boligen fremstår lys og indbydende med gode fællesrum og praktisk indretning, perfekt til den moderne familie. Stuen byder på store vinduespartier med udsigt til haven og et dejligt lysindfald, mens køkken/alrummet danner hjemmets naturlige samlingspunkt. Herfra er der udgang til den solrige terrasse, hvor man kan nyde sommeraftenerne med kig mod Limfjorden.
Det separate udehus giver mange muligheder – oplagt som hobbyrum, kontor, gæsteafdeling eller teenageafdeling. Garagen har fin plads til bil, cykler og opbevaring.
Beliggenhed – tæt på vand, natur og hverdagens bekvemmeligheder
Kystvej 62 ligger i det attraktive Egense, et hyggeligt og fredeligt lokalsamfund omgivet af smuk natur, strand og fjord. Her bor du tæt på Limfjorden og det populære færgeleje til Hals, hvor der er liv, ishus og hyggelig havnestemning om sommeren.
Området byder på gode fritidsmuligheder – du kan tage en frisk dukkert, sejle, fiske eller gå lange ture langs kysten. Der er desuden kort afstand til Egense Strand Camping, lystbådehavn og naturstier, der fører helt til Lille Vildmose.
Til de daglige indkøb er der kun få minutter til Storvorde, hvor du finder supermarkeder, specialbutikker, skole, daginstitutioner og sportshal. Aalborg nås på ca. 25 minutter i bil, så du får en perfekt kombination af landlig idyl og nem adgang til byens tilbud.
En ejendom med mange muligheder
Kystvej 62 er ideel til familien, der ønsker god plads og en rolig beliggenhed tæt på vand og natur – men stadig med overskuelig afstand til byliv og indkøb.
Kontakt os idag for fremvisning på 98 32 61 99.
Skal du have solgt først?
Jeg tilbyder en gratis og uforpligtende salgsvurdering af din bolig!