Lynghøjvej 48, Stilling,
8660 Skanderborg
Renoveret rækkehus i attraktive Stilling Lynghøjvej 48 ligger centralt i Stilling, hvor hverdagen fungerer fra dag ét. Her finder du både skole, daginstitution, indkøb og idrætsfaciliteter i gå- og cykelafstand, mens grønne områder og boldbaner ligger lige i nærheden.
Beliggenheden giver også en nem hverdag for pendleren – blot 10 minutters kørsel til Skanderborg og hurtig adgang til motorvej E45, der fører dig til Aarhus eller Horsens på omkring 20 minutter.
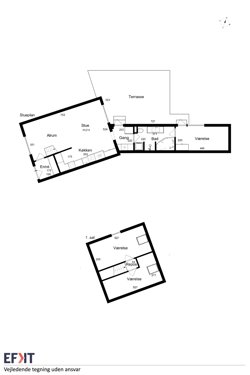
Selve huset er et charmerende rækkehus fra 1920, som i hhv. 2016 og 2021 gennemgik en omfattende renovering. Det betyder, at du her får en moderne og indflytningsklar bolig. Boligen rummer 102 veludnyttede kvadratmeter på en grund på 344 kvadratmeter, og planløsningen er gennemtænkt til både familier, par og singler.
Du bydes velkommen i en lys entré med god skabsplads. Husets naturlige samlingspunkt er det åbne køkken-alrum i forlængelse af stuen. Derudover er der baggang, flot badeværelse og et regulært disponibelt rum i forlængelse heraf. På førstesalen finder du to gode værelser, der kan bruges som børneværelser, soveværelse, kontor eller gæsterum.
Der er udgang til en skøn have med en hyggelig, privat terrasse. Terrassen indbyder til lange sommeraftener, mens børnene kan lege på græsplænen. Et praktisk skur giver plads til cykler, værktøj og opbevaring.
Lynghøjvej 48 er en bolig, hvor det hele går op i en højere enhed: beliggenhed, funktionalitet og modernisering. Et hjem, der er lige til at flytte ind i – og som bør opleves ved selvsyn.
Ring til os på tlf. 86 52 52 86 for en fremvisning.
Skal du have solgt først?
Jeg tilbyder en gratis og uforpligtende salgsvurdering af din bolig!