Vroldgade 7B, Vrold,
8660 Skanderborg
På Vroldgade 7B får du en bolig beliggende i hyggelige Vrold – et område kendt for sin rolige stemning, naturskønne omgivelser og korte afstand til Skanderborg centrum. Her bor du få minutter fra byen, men med fornemmelsen af landlig idyl og god plads omkring dig. Samtidig er der nem adgang til E45, hvilket gør pendling let og bekvem.Området byder på åbne landskaber, skovområder og grønne arealer, som danner en smuk ramme om hverdagen og giver gode muligheder for udeliv året rundt. Det er et oplagt sted for både familier og par, der ønsker ro, tryghed og nærhed til naturen – uden at give afkald på byens tilbud.
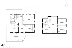
Boligen fremstår indbydende og funktionel med en planløsning, der understøtter både familieliv og sociale sammenkomster. Stueetagen byder på et rummeligt køkken/alrum, en god lys stue - herfra er der udgang til haven og terrassen. Yderligere er her et praktisk bryggers, badeværelse samt et værelse, der med fordel kan benyttes som kontor eller walk-in-closet. Køkkenet ligger naturligt i forlængelse af boligens opholdsarealer og danner et naturligt samlingspunkt for hverdagen, hvor madlavning og samvær går hånd i hånd.
Førstesalen rummer yderligere tre værelser, endnu et badeværelse samt en stor repos, hvor børnene kan boltre sig.
Udendørs finder du gode opholdsarealer, hvor sol og udeliv kan nydes i fredelige omgivelser. Der er terrasser og hyggelige kroge, så der altid er mulighed for at trække rundt afhængigt af sol og vind. Haven giver plads til leg, afslapning og hyggelige stunder. Der er desuden en glimrende carport samt gode parkeringsforhold.
Vroldgade 7B er for dig, der ønsker en flot og gedigen bolig med nem adgang til natur, skole, institutioner, indkøb og Skanderborgs byliv – et hjem, hvor hverdagen fungerer ubesværet.
Ring til John Frandsen på tlf. 86 52 52 86 og bestil din fremvisning.
Skal du have solgt først?
Jeg tilbyder en gratis og uforpligtende salgsvurdering af din bolig!