Prins Christians Vænge 11, Skanderborg Bakker,
8660 Skanderborg
Skanderborg Bakker er ét af Skanderborgs mest eftertragtede områder med en attraktiv og central beliggenhed. Området er kendetegnet ved rolige og naturskønne omgivelser med grønne fællesarealer og gode stisystemer, der skaber trygge rammer for både børn og voksne. Der er kort afstand til Skanderborg midtby med indkøbsmuligheder, skole, daginstitutioner og øvrige hverdagens fornødenheder. Derudover ligger ejendommen i 10 min. gåafstand til byens togstation.Beliggenheden er særdeles fordelagtig for pendleren med nem adgang til motorvejsnettet, som hurtigt fører til både Aarhus og resten af Østjylland. Samtidig er der let adgang til byens mange faciliteter, hvilket gør hverdagen både nem og bekvem.
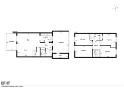
Der er tale om et moderne og velopført funkisrækkehus, opført i 2019 på 140 kvadratmeter. Huset byder på en velfungerende og familievenlig planløsning med to veludnyttede etager og badeværelser på begge etager. Husets samlingspunkt er det åbne og lyse køkken-alrum i forbindelse med stuen, hvor store vinduespartier giver et skønt lysindfald og skaber en indbydende atmosfære. Planløsningen er gennemtænkt og ideel til det moderne familieliv.
På førstesalen findes boligens værelser, hvilket giver en god opdeling mellem opholdsrum og private afdelinger og understøtter en funktionel indretning.
Til boligen hører en lille, overskuelig have samt et hyggeligt terrassemijø, der indbyder til afslapning og udeliv i sommerhalvåret.
Et attraktivt rækkehus i et populært område – en bolig, der bør opleves.
Ring til John Frandsen på tlf. 86 52 52 86 og bestil din fremvisning.
Skal du have solgt først?
Jeg tilbyder en gratis og uforpligtende salgsvurdering af din bolig!