Vestermarksvej 1,
7470 Karup J
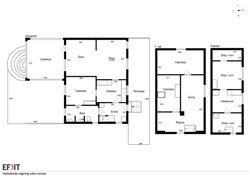
Velkommen til Vestermarksvej 1– en charmerende og funktionel ejendom med et boligareal på 146m², beliggende i naturskønne omgivelser med udsigt over egen sø og adgang til hele 1,5 hektar jord. Her får du et hjem med plads, udsigt og muligheder–både for familien, naturelskeren og den pladskrævende hobby.Boligens stueplan byder på et lyst og indbydende køkken med god skabsplads og direkte adgang til et hyggeligt værelse samt et større stuemiljø opdelt i to sammenhængende opholdsrum. Fra stuen er der udgang til den flotte og funktionelle udestue, som er et stort aktiv for boligen –her kan du nyde et fantastisk kig ud over søen og haven, uanset årstid. Udestuen giver samtidig en glidende overgang mellem bolig og natur.
I stueetagen finder du også et pænt badeværelse, et ekstra værelse, en entré med trappe til både 1. sal og kælder samt udgang til en stor terrasse mod haven.
På 1. salen findes yderligere to gode værelser samt et repos og gangareal med flere indretningsmuligheder–f.eks.kontor eller hyggeligt læsehjørne.
Kælderen rummer et praktisk vaskerum samt to disponible rum, der kan anvendes til opbevaring, værksted, hobbyrum eller lignende.
Grunden på 1,5 hektar giver masser af plads til dyrehold, køkkenhave, friluftsliv eller blot ro og privatliv. Der er mulighed for at tilkøbe yderligere jord, hvis du ønsker endnu mere plads eller har behov for det til f.eks. hestehold.
Ejendommen ligger fredeligt, men stadig med nem adgang til nærliggende byer, skole og indkøb.
Kontakt John Frandsen Karup allerede i dag på tlf.: 97 10 10 10 og bestil din fremvisning
Skal du have solgt først?
Jeg tilbyder en gratis og uforpligtende salgsvurdering af din bolig!