Vestermarksvej 6, Klejs,
7130 Juelsminde
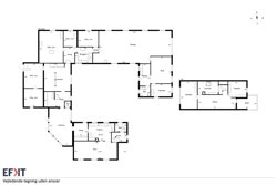
Hovedhuset rummer 222 m² bolig, fordelt på stueplan og en veludnyttet førstesal. Huset er opført i 1930 og om-/tilbygget i 2002, og fremstår i dag som en bolig med en varm og imødekommende atmosfære.Du bydes velkommen i en lys og praktisk entré med god plads til overtøj og sko. Herfra træder du ind i det centrale opholdsrum i boligen: et stort køkkenalrum med god skabs- og bordplads. Her er der fint plads til både hverdagens madlavning og samvær. Fra køkkenalrummet er der direkte adgang til den store stue, og via gangen er der adgang til den syd/vestvendte udestue på 31 m² – et skønt ekstra opholdsrum med udsigt til haven og de omkringliggende marker. Der er desuden adgang til en skøn terrasse med plads til udeliv og afslapning.
I åben forbindelse med køkkenalrummet ligger den store og indbydende stue, som får masser af naturligt lys fra de brede vinduespartier. Her er der god plads til et større spisebord i den ene ende og et hyggeligt sofaarrangement i den anden. Midt i rummet står en brændeovn, der spreder varme og stemning – ideel til både afslapning og samvær.
I stueplan finder du også et badeværelse og et værelse. Førstesalen rummer tre gode værelser, som har mange muligheder og kan indrettes lige som det lyster. Etagen deles op af et rummeligt repos, hvor der er plads til kontorhjørne eller hyggekrog – og herfra er der desuden adgang til en altan med skøn udsigt over markerne og vandet. Etagen er veludnyttet og giver rigeligt med plads til den pladskrævende familie.
Til ejendommen hører en særdeles anvendelig bygningsmasse: To solide udbygninger på hhv. 232 m² og 82 m². Den ene fungerer i dag som garage, værksted og anneks med flere disponible rum, køkken og badeværelse. Her er god loftshøjde, brede porte og masser af plads til både hobby og opbevaring.
Det hele ligger på en grund på 2.115 m², med hyggelig have, grønne kroge og mulighed for både dyrkning, leg og afslapning i det fri. Her er der luft omkring dig – og ingen naboer lige udenfor hækken.
Ejendommen ligger godt placeret med kort afstand til den hyggelige landsby Klejs men også Juelsminde, Glud og Snaptun. Ejendommen hører til Raarup Skoledistrikt. Horsens og Juelsminde nås begge på under 15 minutter i bil. Du bor altså fredeligt – men stadig med nem adgang til byliv og hverdagens fornødenheder.
Skal du have solgt først?
Jeg tilbyder en gratis og uforpligtende salgsvurdering af din bolig!