Nansensvej 24,
8700 Horsens
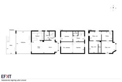
På Nansensvej 24 udbydes denne indbydende og velholdte villa, hvor klassiske rammer og moderne forbedringer går hånd i hånd. Her får I 215 etagemeter, en bolig der fremstår lys og funktionel, og hvor flere af de større opdateringer allerede er på plads – lige til at flytte ind i og nyde fra dag ét.Boligens opholdsrum er præget af et dejligt lysindfald og en god rumfornemmelse, hvor stuerne ligger i naturlig forlængelse af hinanden. Herfra er der adgang til en skøn udestue, som fungerer som et ekstra opholdsrum store dele af året og skaber en fin overgang mellem inde- og udeliv. Køkkenet, som er fra 2019 ligger i åben forbindelse med stuen, fremstår praktisk og velindrettet med god skabsplads og er desuden indrettet med køkken ø, hvor der er plads til alt fra lektielæsning til morgenmadsspisning.
Badeværelset er fra 2025 og står flot og moderne med et stilrent udtryk – her er der desuden gulvvarme, som bidrager til en ekstra behagelig komfort i hverdagen.
På førstesalen finder I boligens værelsesafdeling, som byder på to gode værelser med mulighed for etablering af et 3. samt et repos, der kan indrettes efter behov – eksempelvis som kontorplads eller en hyggelig opholdskrog. Etagen giver en fin opdeling mellem opholdsrum og privatliv og er ideel til både børnefamilien eller parret, der ønsker ekstra plads.
Derudover rummer ejendommen en rummelig kælder på hele 89 m², som giver jer masser af ekstra plads. Her er mange anvendelsesmuligheder – hvad enten I drømmer om hobbyrum, værksted, opbevaring eller en separat afdeling til de større børn.
Udendørs venter en overskuelig og nem have, hvor der er plads til både afslapning og leg. Her kan I nyde de lune dage i rolige omgivelser, uden at vedligeholdelsen tager overhånd.
Beliggenheden er særdeles attraktiv med kort afstand til skole, daginstitutioner, indkøb og fritidsaktiviteter. Samtidig er der nem adgang til Horsens midtby, hvilket gør hverdagen både bekvem og fleksibel. Området henvender sig især til førstegangskøbere, unge par eller den lille familie, der ønsker en tryg base tæt på både byliv og grønne omgivelser.
Her får I en solid og indflytningsklar bolig med en god planløsning, fine opdateringer og mulighed for at sætte jeres eget præg over tid.
Skal du have solgt først?
Jeg tilbyder en gratis og uforpligtende salgsvurdering af din bolig!