Baunevej 10, Snoghøj,
7000 Fredericia
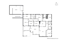
På en attraktiv og rolig adresse i Fredericia udbydes nu denne klassiske etplansvilla, der på fineste vis forener solidt håndværk med nutidige opdateringer. Ejendommen på Baunevej 10 præsenterer sig med en rød murstensfacade og hvide vinduespartier, der sammen med den flisebelagte indkørsel og tilhørende garage skaber et indbydende førstehåndsindtryk. Indenfor fortsætter det positive indtryk, hvor boligen bærer præg af at være løbende moderniseret med fokus på både æstetik og funktionalitet. Boligen byder på en praktisk entré hvorefter man har adgang til et gæstetoilet. Boligens absolutte hjerte og naturlige samlingspunkt er det imponerende køkken-alrum og stueområde. Det hvide køkken er både elegant og funktionelt med integrerede hvidevarer og en bordplade, der giver et skarpt og moderne udtryk. Stuen er præget af et fantastisk lysindfald fra de store vinduespartier, som giver udgang til en lys udestue, der fungerer som en naturlig forlængelse af opholdsområdet. Fra udestuen er der videre adgang til en overdækket terrasse, hvor udelivet kan nydes i læ for vind og vejr, som skaber en flydende overgang mellem inde- og udeliv. Stuen rummer god plads til både en hyggelig sofaafdeling og en stor spiseplads. Derudover er der direkte adgang til et værelse, hvilket giver fleksible indretningsmuligheder. Fra stuen fører et par trin ned til en hyggelig, nedsænket stue med pejs, som tilfører boligen ekstra charme og skaber et stemningsfuldt opholdsrum. Værelsesafdelingen er gennemtænkt og trukket tilbage i en separat fløj, hvilket sikrer ro og privatliv. I værelsesafdelingen findes to store og to mindre værelser, hvorfra der fra et af de store værelser er adgang til en overdækket terrasse. Via fordelingsgangen er der adgang til et større badeværelse. Som supplement til hverdagens praktiske behov findes et veludnyttet bryggers med egen indgang placeret bag køkkenet, hvor der er rigelig opbevaringsplads. Haven er overskuelig og omkranset af hæk, hvilket giver gode rammer for leg og afslapning. Med garage og gode parkeringsforhold i indkørslen er her tale om en komplet bolig, hvor moderne komfort og en optimal planløsning går hånd i hånd. Lyder det interessant? Kontakt os i dag på tlf. 76 22 30 55 for en fremvisning
Skal du have solgt først?
Jeg tilbyder en gratis og uforpligtende salgsvurdering af din bolig!