Hostrupsvej 21,
7000 Fredericia
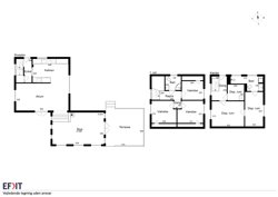
På Hostrupsvej 21 i Fredericia finder du denne lyse og moderniserede villa med masser af atmosfære og plads til hele familien. Ejendommen byder på en veldisponeret planløsning fordelt på tre etager og rummer både funktionalitet og charme i et roligt og eftertragtet kvarter tæt på by, natur og hverdagens bekvemmeligheder. Stueplan byder velkommen med en entré, der leder ind til et lyst og rummeligt køkken-alrum. Køkkenet fremstår moderne og stilrent, god bordplads og en praktisk kogeø, der danner centrum for hverdagens aktiviteter. Alrummet flyder naturligt sammen med spise- og opholdsområdet, hvor store vinduespartier skaber et smukt lysindfald og en åben forbindelse til terrassen og haven. En tilstødende stue med brændeovn giver ekstra hygge og fungerer som boligens naturlige samlingspunkt for familie og gæster. Førstesalen rummer tre gode værelser med mange anvendelsesmuligheder – ideelle som soveværelser, børneværelser eller hjemmekontor. Her findes desuden et lyst badeværelse med bruseniche samt repos og gangareal, der binder etagen fint sammen. Kælderen er fuldt udnyttet og giver boligen ekstra fleksibilitet. Her findes endnu et badeværelse, bryggers og flere disponible rum, som kan bruges til hobby eller opbevaring. De mange anvendelsesmuligheder gør etagen både praktisk og funktionel i hverdagen. Udendørs byder ejendommen på en hyggelig terrasse, der ligger i direkte forlængelse af opholdsstuen. Her kan du nyde solen og de rolige omgivelser. Beliggenheden på Hostrupsvej kombinerer bynærhed med ro. Her er kort afstand til skole, daginstitutioner, indkøb og grønne områder, og du når Fredericia midtby på få minutter. Området er kendt for sin tryghed og familievenlige atmosfære, der inviterer til både aktivitet og ro.
Skal du have solgt først?
Jeg tilbyder en gratis og uforpligtende salgsvurdering af din bolig!