Østergade 32,
9560 Hadsund
På Østergade 32 er der masser af muligheder for både at drive erhverv og udlejning, hvor der tidligere har været en lejeindtægt på 104.000,- (inkl. alt.)Bemærk at der i nuværende erhvervsmål, er mulighed for at lave yderligere to lejligheder, da der ikke forligger krav om at det skal forblive erhverv.
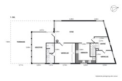
På 1. sal er der lejlighed på 120 kvm. bolig, som er indrettet med en entré, rummelig stue med brændeovn og spiseplads, hyggelig udestue med direkte udgang til stor træterrasse med udsigt udover Mariagerfjord. Endvidere byder lejligheden på et flot og velholdt køkken med plads til mindre spiseplads, badeværelse med bruseniche og vaskesøjle, et værelse med indbyggede skabe og to mindre værelser.
Stueplan er på 150 kvm. erhverv, hvor der tidligere har været drevet erhverv, købmandsbutik og låsesmed, er indrettet med et stort lyst rum med store vinduespartier, hvilket byder rummet på masser af muligheder samt direkte udgang til garage, hvor der er plads til to biler. Der er desuden et tilhørende depotrum med udgang til toilet og en bagindgang.
I kælderen er der et større disponibelt rum samt tre mindre, hvor der er plads til diverse opbevaring.
En 3-etagers ejendom med masser af muligheder, hvor kun fantasien sætter grænser, hvor der blandt andet vil være rig mulighed for at have en billig udlejningsejendom med flere lejemål helt centralt i Hadsund med kort afstand til alle byens faciliteter.
Bemærk der siden billederne er taget er foretaget flere moderniseringer af ejendommen.
Skal du have solgt først?
Jeg tilbyder en gratis og uforpligtende salgsvurdering af din bolig!