Visborgvej 20, Visborg,
9560 Hadsund
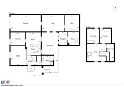
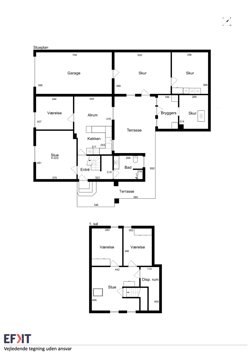
Denne villa på 138 m² ligger i fredelige omgivelser i Visborg og giver dig en tryg base med mulighed for at sætte dit eget præg. Ved ankomst kører du ind ad egen indkørsel til en garage og en velholdt forhave.Indenfor mødes du af en entré med plads til overtøj og et mindre opbevaringsrum. Herfra åbner huset sig op med en rummelig opholdsstue, hvor der er god plads til både sofa og tv. Køkken/alrum ligger i åben forbindelse og fungerer som et lyst samlingspunkt med spisebord og plads til madlavning. Fra alrummet er der adgang til et værelse, som tidligere har været soveværelse – det kan også bruges til at udvide stuen, hvis du ønsker ekstra opholdsplads.
Førstesalen rummer et stort repos, som kan bruges til kontor eller ekstra stue, to gode værelser samt et disponibelt rum med mange anvendelsesmuligheder.
Udenfor finder du to udhuse på i alt 51 m², som egner sig til værksted, hobby eller opbevaring. Haven har græs til leg og aktiviteter, og drivhuset giver mulighed for at dyrke egne planter.
Beliggenheden i Visborg giver ro og udsigt til naturen, samtidig med at du har skole, indkøb og idrætsliv tæt på. Hadsund ligger blot fem minutter væk i bil, og der er cykelsti det meste af vejen. Øster Hurup når du på cirka 15 minutter med skøn strand og livligt sommermiljø.
En bolig med gode rammer og masser af potentiale – klar til dig, der vil forme et hjem efter egne ønsker.
Kontakt os på tlf. 98 57 57 77 for en fremvisning. Vi glæder os til at vise dig mulighederne.
Skal du have solgt først?
Jeg tilbyder en gratis og uforpligtende salgsvurdering af din bolig!