Enebærvej 6,
9560 Hadsund
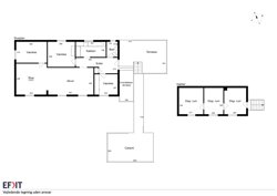
For enden af en rolig vej i Hadsund finder du denne mulighedsrige villa på 103 m². Her bor du fredeligt og samtidig centralt – med et godt udgangspunkt for at skabe et hjem efter egne ønsker.Ved ankomst mødes du af en carport og en gangsti, der leder dig frem til hoveddøren. Indenfor træder du ind i en rummelig entré med god plads til sko og overtøj. Herfra er der adgang til husets badeværelse med bruseniche samt et af boligens tre værelser, som er indrettet med en praktisk, fuld skabsvæg.
Køkkenet er lyst og funktionelt med plads til både madlavning og et mindre spisebord. Stuen fremstår lys og rummelig med god plads til både spisebord og sofaarrangement. Her er der rig mulighed for at indrette et hyggeligt opholdsrum med plads til samvær og afslapning.
Boligen rummer i alt tre værelser i ordinær størrelse, som kan indrettes til soveværelse, børneværelser, kontor eller hobbyrum – alt efter behov. Villaen er pudset og har vinduer fra 2010 samt et velholdt ståltag, hvilket giver et solidt fundament for eventuelle moderniseringer.
Kælderen på 36 m² har separat indgang og byder på gode anvendelsesmuligheder. Her er oplagt plads til opbevaring, hobbyaktiviteter eller værksted.
Fra hoveddøren er der adgang til en overdækket terrasse, hvor middagssolen kan nydes i rolige omgivelser. Grunden på 1.148 m² byder på en rolig og naturrig have med god plads til leg, afslapning og
havedrømme. Derudover får du et udhus på 9 m², som kan anvendes til opbevaring, værksted eller hobbyrum.
Beliggenheden er central i Hadsund med blot tre minutters kørsel eller cirka 20 minutters gang til indkøb og gågade. Hadsund Skole nås på omkring 10 minutter på cykel, og du har let adgang til natur og stisystemer i nærområdet.
Her får du en villa med en attraktiv placering og et solidt udgangspunkt – ideel for dig, der ønsker at sætte dit eget præg og skabe et hjem med både ro og byens faciliteter tæt på.
Kontakt os på 98 57 57 77 for en fremvisning – vi glæder os til at vise dig mulighederne.
Skal du have solgt først?
Jeg tilbyder en gratis og uforpligtende salgsvurdering af din bolig!