Gl Vivevej 190, Vive,
9560 Hadsund
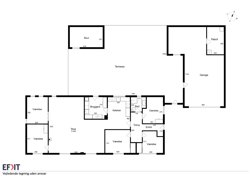
Étplansvilla med hele 179 m² bolig og en imponerende garage på 87 m²Velkommen på Gl Vivevej 190. Her får du et klassisk og flot rødstenshus med en gennemtænkt planløsning, hvor køkken og opholdsrum er placeret centralt i boligen. Det skaber et naturligt samlingspunkt i hjemmet, hvor hverdagen samles. Boligen byder på et lyst og rummeligt køkken i hvidt med god spiseplads. I direkte forbindelse ligger den store vinkelstue, som indbyder til både hyggelige middage og afslapning i sofahjørnet – her er der god plads til det hele, og brændeovnen sætter prikken over i’et på de kølige aftner.
Bryggerset er praktisk indrettet med vaskesøjle og ligger ideelt placeret ved køkkenet, hvilket gør det oplagt som både viktualierum og tørlager. Villaen rummer hele 5 værelser, fordelt i hver sin ende af boligen. Det giver oplagte muligheder for at indrette en separat forældre- og børneafdeling – eller plads til hjemmekontor, hobbyrum og børneværelser. Badeværelset er flot og lyst.
Udendørs venter en stor og ugeneret have, primært anlagt i græs er ideel til børneleg og afslapning. Her er både drivhus, jordbærbed og æbletræ. Den store fliseterrasse med overdækning danner en skøn ramme om udelivet, og med flere opholdsarealer er der mulighed for at finde både sol og skygge hele dagen. Gl Vivevej 190 byder desuden på en særdeles rummelig garage på hele 87 m² med grav og værksted– ideel til bilentusiasten eller den pladskrævende hobby. Hertil kommer et stort skur ved den overdækkede terrasse.
Beliggenheden er rolig og familievenlig i en mindre by med kort afstand til det meste. Du har kun 1 kilometer til Vivehavn med gode gå stier, fantastisk natur og flotte lystbåde. Der er under 300 meter til busstop og kun 5 minutters kørsel til Hadsund, hvor du finder skole, indkøb, biograf, caféer og meget mere. Samtidig er der blot 20 minutter til Hobro og 40 minutter til Aalborg.
En oplagt bolig til familien, der ønsker god plads – både inde og ude! På en rolig beliggenhed men med kort afstand til alle hverdagens gøremål.
Ring på telefon: 98 57 57 77 og hør mere!
Skal du have solgt først?
Jeg tilbyder en gratis og uforpligtende salgsvurdering af din bolig!