Rugvænget 23, Øster Hurup,
9560 Hadsund
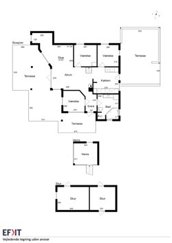
Dette charmerende fritidshus er oprindeligt fra 1965, men blev revet ned og genopført i 2010. Siden da er det blevet løbende renoveret af sælgerne, herunder et nyt køkken med Quooker, badeværelse og en ny stor træterrasse fra 2020 og nymalet i 2024. Ydermere er der blevet opført et stort redskabsskur med tilhørende brændeskur i 2018.Fritidshus indeholder: Lyst og åbent køkken-alrum med loft til kip og udgang til to terrasser, hvor du kan nyde både morgen- og aftensolen under den delvist overdækkede træterrasse. Stuen har godt lysindfald og en hyggelig alkove til børnenes leg eller til ekstra overnattende gæster. Derudover er der en hyggelig hems og tre gode værelser. Badeværelset er udstyret med badekar og bruseniche med 310mm rainshower. Der er desuden gulvvarme i hele huset og en varmepumpe i stuen fra 2017, som sørger for at holde huset behageligt året rundt.
Udenfor er der et godt isoleret redskabsskur fra 2018 med HTH inventar og med tilhørende brændeskur samt et redskabsskur på husets langside til opbevaring af cykler, græsslåmaskine mv. Den 765 m2 store grund er primært udlagt til græsplæne, hvilket gør den nem og overkommelig at holde. Her er desuden en udebruser, som kan benyttes efter en god dag ved stranden.
Fritidshuset er godt isoleret og kan bruges hele året.
Udover den korte afstand til nogle af Østkystens flotteste badestrande, er du også i gåafstand til alt, hvad feriebyen Ø. Hurup har at byde på, herunder shopping, restaurant besøg, lystbådehavn, badeland og legepladser mv. Derudover ligger naturreservatet Tofte Skov ikke langt derfra, kendt for sin smukke natur og rige dyreliv med blandt andet kronhjorte, elge og vildsvin. Til Als by er der ca. 5 minutters kørsel, hvorder findes en stor Meny dagligvarebutik, slagter, bager og Als Badehotel mv.
Her får du et godt og moderne fritidshus tæt på feriebyen Øster Hurup og endnu tættere på Kattegat og de skønne badestrande.
Kunne dette fritidshus være noget for dig? Så tøv ikke med at ringe på 88 70 50 95 for en fremvisning.
Skal du have solgt først?
Jeg tilbyder en gratis og uforpligtende salgsvurdering af din bolig!