Viborgvej 339, Over Fussing,
8920 Randers NV
Villaen er opdateret af nuværende ejer, og SKAL opleves!Drømmer du om at bo i fredelige omgivelser, omgivet af natur og med god plads både til familien, hobbylivet og måske endda en mindre erhvervsaktivitet? Så byder Viborgvej 339 i Over Fussing på den helt rette kombination af hjemlig hygge og funktionelle rammer.
Her får du en skøn landejendom, hvor fredelige omgivelser og masser af plads går op i en højere enhed. Her får I næsten 7.000 m² grund med naturskøn udsigt, funktionelle udbygninger, et charmerende og moderniseret stuehus i to plan – og samtidig er hverdagens fornødenheder kun få minutter væk.
Denne ejendom er noget helt særligt – her bor I midt i den smukke natur, tæt på Fussing Sø og de omkringliggende skovområder, men stadig med nem adgang til Øster Bjerregrav, hvor både dagligvarebutikker, skole og institutioner findes. Det er den perfekte ramme for jer, der drømmer om at bo i landlige omgivelser uden at give afkald på hverdagskomfort.
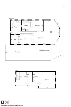
Stuehuset rummer i alt 195 m² fordelt over to etager. Når I træder ind, mødes I af et lyst og moderne bryggers, som åbner op til et dejligt køkken-alrum med god plads og naturligt lys. Herfra er der adgang til en rummelig stue med et smukt, rundt vinduesparti, der giver et fantastisk lysindfald og en stemning af ro og varme. Stueplan byder også på et stort badeværelse og et soveværelse med direkte udgang til terrassen – ideelt til lange, lune aftener.
På første sal finder I en lang repos, der fungerer som fordelingsgang til to gode værelser samt et stort fællesrum, der kan anvendes præcis som I ønsker – måske som tv-stue, legerum eller noget helt tredje.
Udendørs kan I nyde en stor, sydvendt stenterrasse – delvist overdækket – og en velholdt have med masser af græs, flotte beplantninger og en hyggelig dam. Her får I privatliv og naturoplevelser helt tæt på, lige uden for døren.
Til ejendommen hører desuden en stor værkstedsbygning på 361 m² samt en garage på 60 m². Det giver jer masser af muligheder – uanset om I har brug for værksted, hobbyprojekter eller noget helt andet.
Beliggenheden i Over Fussing kombinerer naturens ro med en praktisk hverdag – og gør denne ejendom til et sjældent fund for jer, der drømmer om livskvalitet, plads og muligheder i landlige omgivelser. Her er der virkelig mulighed for at skabe det gode liv – med luft, udsyn og nærhed til både skov, sø og fællesskab.
Dette er en ejendom som skal opleves! Bestil din personlige fremvisning allerede i dag!
Skal du have solgt først?
Jeg tilbyder en gratis og uforpligtende salgsvurdering af din bolig!