Færgevej 1, Uggelhuse,
8960 Randers SØ
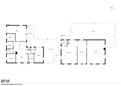
På en sjældent udbudt beliggenhed helt ned til Randers Fjord i Uggelhuse, finder du denne rummelige og spændende ejendom med masser af muligheder. Boligen, der har nyere tag, rummer hele 180 m² i ét plan og byder på en fleksibel indretning med flere indgange, herunder til entré og et stort praktisk bryggers. Hjertet i hjemmet er det store alrum/stue, hvor den flotte naturskorsten med brændeovn skaber et naturligt samlingspunkt, ligesom den fine dobb. dør giver adg. til en stor vinkelstue. Her er god plads til både ophold og samvær, og rummenes størrelse giver mange indretningsmuligheder. Boligen indeholder desuden et rummelige køkken med fin spiseplads og fjordudsigt, tre gode værelser, et badeværelse samt et gæstetoilet, hvilket gør den velegnet til både familier og dem, der ønsker ekstra plads. Udendørs venter en helt særlig oplevelse. Haven fremstår som sin egen private oase med dam, flisebelagt stisystem, drivhus og varieret beplantning, der skaber hyggelige kroge og et rigt udeliv året rundt. Til ejendommen hører en stor værkstedsbygning/garage på hele 180 m² - hvis enten du drømmer om pladskrævende hobbyer eller opbevaring. Som noget helt særligt medfølger der et stort jordstykke, der strækker sig helt ned til fjorden, med unik mulighed for at nyde naturen, udsigten og det maritime miljø. Beliggenheden i Uggelhuse er ideel for dig, der ønsker ro, natur og vand tæt på hverdagen. Området er kendt for sin smukke natur langs Randers Fjord og gode muligheder for friluftsliv som sejlads, fiskeri og gåture langs vandet. Samtidig er der kun 7 km. til Assentoft, hvor der forefindes fine indkøbs muligheder, skole (skolebus), idrætsfaciliteter mm.. Lyder dette som dit næste hjem, så kontakt os allerede i dag for en fremvisning!
Skal du have solgt først?
Jeg tilbyder en gratis og uforpligtende salgsvurdering af din bolig!