Solvang 4, Fousing,
7600 Struer
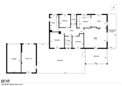
Velkommen til Solvang 4 - en flot og velholdt gul murstensvilla fra 1971, hvor både charme og funktionalitet går hånd i hånd. Boligen byder på 125 kvadratmeter bolig samt en dejlig udestue på hele 21 kvadratmeter, der forlænger sæsonen i begge ender og skaber et skønt rum til afslapning og samvær.Indenfor får du en velindrettet planløsning med tre gode værelser og et badeværelse, som fremstår indbydende og pænt. Køkkenet står funktionelt med god skabsplads, gaskomfur og alt det nødvendige til den daglige madlavning. Herfra er der en hyggelig forbindelse til alrummet gennem en buet murstensgennemgang, der skaber karakter og sammenhæng mellem rummene. Stuen har en nyere brændeovn fra 2022, som bidrager til varme og hygge, og herfra er der let adgang til udestuen, som blev tilbygget i 2002. Der er nem adgang fra køkken-alrummet og ud til den overdækkede terrasse som vender mod sydøst, med kig over marker og natur. Her kan du nyde en kop kaffe i tørvejr.
Udenfor venter en skøn og nem have med fine kroge, hvor man kan nyde solen i skønne omgivelser. Derudover får du en garage med tilhørende værksted, perfekt til hobby eller opbevaring. Huset opvarmes med naturgas og har fået en ny combi-vandvarmer installeret, som kan varme op med el uden for fyringssæsonen. Flere radiatorer har fået nye termostatventiler.
Beliggenheden i Fousing giver dig et trygt og hyggeligt lokalsamfund med kort afstand til Struer, hvor du finder både indkøb, skole, fritidsaktiviteter og alt det, hverdagen kræver. I bliver en del af et lokalsamfund med en aktiv borgerforening og medborgerhus, som afholder flere begivenheder som Sankt Hans, aftener med fællesspisning og kreative aftener.
En veldisponeret og indflytningsklar villa med masser af atmosfære, perfekt til familien, der ønsker ro og nærhed til hinanden.
Kontakt os på 65 43 41 00 for en fremvisning!
Skal du have solgt først?
Jeg tilbyder en gratis og uforpligtende salgsvurdering af din bolig!