Enghegnet 23,
8500 Grenaa
Velindrettet 1 plans villa med skønne udearealer for familien.Drømmer du om et velindrettet hjem med masser af plads og en beliggenhed, der gør hverdagen nem? Så er denne indbydende 1 plans villa det oplagte valg!
Beliggenheden er i top med stisystemet langs Åen, der fører til alle byens faciliteter. Her er man i roligt og børnevanligt kvarter.
- Tæt på alle skoler
- Nem adgang til bymidten
- Kort afstand til skov og idrætscenter med svømmehal
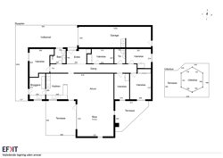
Villaen byder på hele 5 gode værelser, som giver rig mulighed for både børneværelser, hjemmekontor eller gæsteværelse. Hertil kommer badeværelse og yderligere et gæstetoilet, hvilket gør huset ideelt til den aktive familie.
Der er flot indgangsparti, som leder til husets alrum og fordelergang.
Husets naturlige samlingspunkt er det store køkken-alrum i åben forbindelse med den store stueafdeling. Sjældent får man en villa med et sammenhængende rum af denne størrelse – perfekt til både hverdag og og til højtider, når den store familie kommer på besøg.
Husets udformning som et T-hus, skaber dejlige terrassehjørner. Her har man bl.a. et skønt terrasseområde hvor morgensolen nydes med udsyn til have-pavillonen og legeområde samt med adgang fra stue til terrasse, hvor sol i dagtimer og de sene timer nydes. Her er man i uforstyrrede rammer.
Der hører til villaen stor garage med el-port og plads til både bil, værksted og opbevaring.
Her får I en bolig, hvor både børn og voksne trives, og hvor rammerne er sat for mange gode år fremover!
En perfekt villa til familien, der ønsker plads, funktionalitet og en meget attraktiv beliggenhed.
Varme: Fjernvarme. Kloak: Offentlig. Vand: Alment vandforsyning. Vej: Offentlig.
Skal du have solgt først?
Jeg tilbyder en gratis og uforpligtende salgsvurdering af din bolig!