Spurvevej 6, Hammerum,
7400 Herning
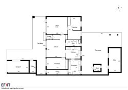
Velkommen til Spurvevej 6 i Hammerum – en velindrettet og hyggelig bolig på 127 m², beliggende på en nem og overskuelig grund på 414 m². Her får du et klassisk hus fra 1964 med en praktisk indretning, lyse leverum og gode udhuse, som tilsammen skaber en velfungerende ramme for både familieliv og hverdag.Boligens hjerte er det store alrum, som ligger centralt i huset og giver en naturlig forbindelse til stue, værelser og køkken. Stuen byder på et lyst og behageligt opholdsrum med god plads til både spisebord og sofaafdeling, og fra rummet er der direkte udgang til terrassen – perfekt til rolige hverdage og sommerens hyggelige stunder.
Køkkenet ligger separat, men stadig med fin kontakt til alrummet, og her er god skabsplads og en funktionel arbejdszone. I forlængelse af køkkenet finder du et praktisk bryggers med egen indgang, hvilket gør hverdagen nem og fleksibel.
Huset rummer to gode værelser, der kan bruges til både børne-, kontor eller gæsteværelse. Dertil kommer et centralt placeret badeværelse i klassisk indretning samt en rummelig entré med god plads til overtøj og opbevaring.
Udenfor får du en nem have, der er let at holde, og som giver mulighed for både leg og afslapning. Terrassen ligger godt placeret i læ af huset, og de to udhuse på i alt 19 m² giver rig plads til opbevaring, hobby eller småprojekter. Carporten på 20 m² sikrer desuden en tørskoet ankomst på alle årets dage.
Alt i alt en velholdt og funktionel bolig i et roligt kvarter i Hammerum – tæt på skole, institutioner, idrætsfaciliteter, indkøb og grønne områder. En oplagt mulighed for både førstegangskøberen, den lille familie eller jer, der ønsker en overkommelig bolig med god planløsning og et dejligt udeliv.
Skal du have solgt først?
Jeg tilbyder en gratis og uforpligtende salgsvurdering af din bolig!