Ingridsvej 27, Lind,
7400 Herning
Velindrettet og hyggeligt rækkehus i hjertet af LindPå Ingridsvej 27 finder du et velholdt og praktisk indrettet rækkehus på 100 m², der henvender sig til både førstegangskøbere, singler, par og den mindre familie. Huset er opført i 1977 og ligger på en overskuelig grund på 470 m², hvor både ude- og indearealer er udnyttet særdeles godt!
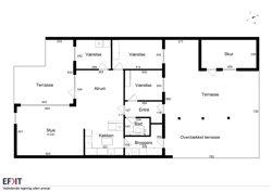
Når du træder ind, mødes du af en hyggelig entré, som åbner op til resten af hjemmet. Fra alrummet er der adgang til tre gode og regulære værelser, der giver plads til både børn, hjemmekontor eller gæster. Badeværelset ligger i forbindelse med entreen og det ene værelse. Det er funktionelt indrettet og du får mest ud af hver en kvadratmeter. Boligen har også en bagindgang med et praktisk bryggers – en klar fordel i hverdagen.
Boligens hjerte, er det lyse alrum, som ligger i åben forbindelse med stuen. Her får du et naturligt samlingspunkt med store vinduespartier, der giver et behageligt lysindfald og en nem overgang til terrassen udenfor. Stuen er ligeledes med massere af naturligt lys og nem at indrette. I forlængelse af alrummet ligger køkkenet, hvor indretningen giver gode arbejdsforhold og mulighed for at være en del af samværet, mens maden tilberedes.
Ude får du flere gode opholdsarealer. Carporten gør det nemt i hverdagen, placeret helt oppe ved huset, så du kan gå tørskoet inden for med bæreposer og skoletasker. Terrassen giver mulighed for at nyde sommeren, da den vender helt rigtigt i forhold til solens gang. Den ugenerede have er let at holde og giver plads til både afslapning og leg.
Til ejendommen hører også et skur på 11 m² – ideelt til opbevaring af cykler, haveredskaber eller hobbyudstyr.
Alt i alt får du her en solid og velbeliggende bolig i det attraktive Lind, hvor du bor tæt på skole, daginstitutioner, idrætsfaciliteter, grønne områder og gode indkøbsmuligheder. En tryg og velfungerende ramme for hverdagen.
Skal du have solgt først?
Jeg tilbyder en gratis og uforpligtende salgsvurdering af din bolig!