Østergårdsvej 3C,
8464 Galten
På en god central beliggenhed i Galten, godt tilbagetrukket fra vejen i en bygning med i alt 4 boliger, har du nu muligheden for, at blive ejer af dette indflytningsklare rækkehus til en rigtig god pris.Her får du en god, regulær bolig i ét plan med en rigtig god planløsning og en dejlig lukket og meget nem have.
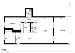
Boligen er indrettet med en pæn entré, hvorfra du har adgang til husets første værelse samt køkken/ alrummet. Køkkenet ligger i åben forbindelse med spisestue og opholdsstue, og her er et dejligt naturligt lys sikret ved hjælp af et stort ovenlysvindue. I den rummelige opholdsstue er der adgang til terrassen. Her er i øvrigt gode muligheder for at etablere et tredje værelse ved hjælp af en skillevæg, da der allerede er adgang fra fordelingsgangen, vindue og radiator. Fra en lille fordelingsgang er der adgang til et stort badeværelse med gulvvarme, et lille vaskerum samt husets største værelse.
Haven vender stik syd, så her er der masser af sol på skyfrie dage. Foruden den store terrasse råder haven over en god plan græsplæne, som er nem at holde, og hvor der er plads til leg og spil. Fra haven er der adgang til Østergårdsvej via en havesti, som er super praktisk, da man således har mulighed for at komme ind i haven med mindre trailer eller komme ud af haven med haveaffald.
På Østergårdsvej 3C kan du bo ganske fredeligt og ugeneret - og samtidig have nem adgang til alle byens mange faciliteter. Vi befinder os kun ca. 750 meter fra skole, idrætshal og daginstitution ligesom omfattende indkøbsmuligheder nås indenfor bare 15 minutters gang.
Galten er en by i rivende udvikling, idet mange børnefamilier fra bl.a. Aarhus og Silkeborg vælger at bosætte sig her – og det forstår man virkelig godt. Byens mange forretninger samt rige forenings- og kulturliv er et trækplaster for mange, idet det står i kombination med den strategisk gode placering ved Herningmotorvejen, som lynhurtigt leder pendlerne videre til de større omkringliggende byer.
Denne bolig er ideel for den enlige, for parret, den fraskilte med ét eller to børn, for seniorerne eller de, der bare ønsker sig en nem og prisvenlig bolig på en god beliggenhed i Galten.
Skal du have solgt først?
Jeg tilbyder en gratis og uforpligtende salgsvurdering af din bolig!