Nørregade 26,
8620 Kjellerup
Velkommen til Nørregade 26 – en klassisk og indflytningsklar villa med sjæl, charme og hele 137 + 87 + 50 etagemeter fordelt på tre veludnyttede plan.Her får I en bolig med god plads til familieliv, hobby og fremtidige drømme – hvad enten I søger hjemmekontor, teenagerum eller bare mange rum at indrette jer i.
Huset fremstår pænt og velholdt med den karakteristiske røde murstensfacade.
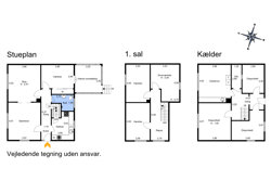
Fra hoveddøren træder I ind i et lyst og indbydende stueplan. Stueplanen byder på et køkken, et badeværelse, et stort værelse med udgang til overdækket terrasse samt både stue og spisestue med smuk sammenhæng og gode indretningsmuligheder.
På første sal finder I yderligere tre værelser samt et rummeligt repos, ideelt som kontor eller hyggekrog. Etagen har fine detaljer og en god loftshøjde, der gør den til en oplagt soveafdeling for børn, teenagere eller jer selv.
Under huset venter en stor kælder på hele 87 m², hvor I får vaskerum, viktualierum og flere disponible rum, som kan anvendes til alt fra opbevaring til værksted.
Grunden er nem at holde med en hyggelig have, overdækket terrasse og en carport, der giver jer tørvejr til bilen og ekstra opbevaringsplads. Beliggenheden er central og familievenlig og er tæt på skole, pasning, indkøb og byens faciliteter.
Nørregade 26 er et hjem med masser af muligheder og en planløsning, der kan tilpasses mange behov – både nu og i fremtiden.
Kontakt os og oplev boligen på nærmeste hold – måske er det her, jeres næste kapitel begynder.
Skal du have solgt først?
Jeg tilbyder en gratis og uforpligtende salgsvurdering af din bolig!