Skelund Hovedgade 40, Skelund,
9560 Hadsund
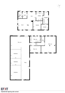
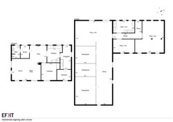
Velkommen til ejendommen Skelund Hovedgade 40 + grunden Elkærvej 14 - Her får du hele 15.353 kvadratmeter helt centralt i Skelund by. Her er solbærmark med rigtig godt bærsalg til både selvpluk og salg fra stalddøren. Vil du hellere have et par får eller heste, så kan der etableres mark på arealet igen ellers har du også en græsmark få hundrede meter fra matriklen, som dyrene kan afgræsse.Tidligere ejer har været i gang med en større modernisering af stuehuset og har indkøbt materialer og startet udnyttelse af 1. salen, men nåede desværre ikke helt i mål, så køber må påregne noget færdiggørelse og modernisering af villaen. Der er nu 114 m2 bolig i stueplan, men når 1. salen medregnes, vil der blive i alt 204 m2. boligareal.
Indeholder: Entré, baggang, køkken, spisestue, dagligstue med udgang til sydvendt have og terrasse med den skønneste udsigt ned over solbærplantagen. Soveværelse, værelse og lyst badeværelse med bruseniche.
Udebygningen på 269 kvadratmeter er inddelt i flere disponible rum og er i dag indrettet med hestebokse velegnet til hestehold, men er i lige så høj grad oplagt til andet dyrehold, en pladskrævende hobby eller egne idéer. Dertil kommer en garage på 19 kvadratmeter til bil, redskaber eller ekstra opbevaring.
Grunden på 15.353 kvadratmeter fordeler sig over gårdsplads, have og mark, og giver reelle muligheder for at lade dyrene gå, dyrke jorden eller blot nyde den frihed, der følger med plads.
Skelund er et levende lokalsamfund med stærkt sammenhold, bl.a. med flere særdeles aktive foreninger og fællesskaber. Du har også mulighed for indkøb af de mest fornødne dagligvarer ellers har du kun 10 min. kørsel til Hadsund med mange muligheder for indkøb, gågade og havnemiljø.
Lige udenfor byen har du Visborggaard Skoven, korup Å og super skøn natur, hvor der er mulighed for mange skønne gåture med familien. Et hjem for dig, der drømmer om plads, muligheder og et aktivt lokalsamfund tæt på byen.
Ring til os på 98 57 57 77 for en fremvisning – vi glæder os til at vise dig mulighederne.
Skal du have solgt først?
Jeg tilbyder en gratis og uforpligtende salgsvurdering af din bolig!