Søbjergvej 21,
7430 Ikast
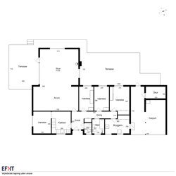
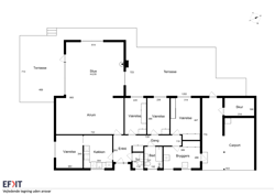
Velkommen til Søbjergvej 21, hvor du træder ind i et indbydende hjem med masser af lys og god plads. Her er rammerne skabt til både hverdag og hyggelige stunder, og boligen rummer mange anvendelsesmuligheder for den moderne familie.Huset indeholder fire værelser, som giver fleksibilitet i indretningen. Der er plads til både børneværelser, kontor eller gæsteværelse, alt efter behov. De lyse rum og den funktionelle planløsning gør det nemt at skabe et hjem, der passer til familiens hverdag.
Den store stue fungerer som husets naturlige samlingspunkt med plads til samvær, middage og afslapning. Store vinduer sørger for et behageligt lysindfald og en god fornemmelse af rummelighed.
Køkkenet er praktisk indrettet og indbyder til fælles måltider og hverdagens aktiviteter. Her kan familien samles i en afslappet og uformel atmosfære.
Boligen rummer et badeværelse samt et separat gæstetoilet. Det er en praktisk løsning, som gør hverdagen mere bekvem og giver ekstra fleksibilitet, når der er gæster i huset.
Ved indgangen ligger et funktionelt bryggers med vaskemaskine og god plads til opbevaring af tøj og sko.
Fra stuen er der adgang til et af husets store terrasser, som giver gode muligheder for at nyde udelivet. Her kan man sidde med en kop kaffe, tænde op i grillen eller slappe af på de varme dage. Haven er enkel at holde og giver plads til både leg og afslapning.
Ejendommen har carport og skur med god opbevaringsplads til haveredskaber, cykler og udstyr.
Beliggenheden er særdeles bekvem – kun fem minutter fra Ikast centrum. Herfra er der kort afstand til indkøb, skole, daginstitutioner, sport og fritidsaktiviteter. Området har et godt lokalt fællesskab, og placeringen giver en fin balance mellem byliv og privatliv.
Søbjergvej 21 er en bolig med plads, funktionalitet og mange muligheder – et hjem, der både er praktisk i hverdagen og rart at komme hjem til.
Skal du have solgt først?
Jeg tilbyder en gratis og uforpligtende salgsvurdering af din bolig!