Farvervænget 11,
9500 Hobro
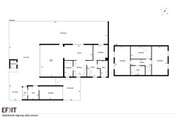
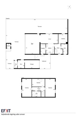
Velkommen til Farvervænget 11, hvor du får en indbydende og moderniseret villa på hele 216 m² med en garage på 33 m².Boligen er beliggende i det attraktive Farvervænget, hvor du bor tæt på skole, fritidsaktiviteter og gode handelsmuligheder – en perfekt ramme for det aktive familieliv.
Villaen er løbende moderniseret og gennemgik i 2020-21 en større renovering, hvor stuen blev udvidet, så der nu er et skønt og lyst opholdsrum med god plads til både hverdag og gæster. Samtidig blev der etableret tre store værelser på 1. sal samt et badeværelse med gulvvarme. I stueplan finder du endnu et værelse, et ekstra badeværelse samt et lyst køkken, der ligger i naturlig forbindelse med den store stue.
Boligen er indrettet med fokus på komfort og funktionalitet. Der er gulvvarme i begge badeværelser, køkkenet og stuen, hvilket giver en behagelig og moderne boligoplevelse. De fire værelser giver rig mulighed for at indrette sig med både børneværelser, kontor eller gæsteværelser.
Udenfor venter en stor og overskuelig have, som er let at holde og samtidig rummer plads til leg, afslapning og udeliv. Boligen omkranses af terrassemiljøer rundt om huset, så du altid kan finde en sol eller lækrog i løbet af dagen.
Med en kombination af god plads, moderne komfort og en attraktiv beliggenhed er Farvervænget 11 en bolig, der henvender sig til familien, som ønsker et indflytningsklart hjem med masser af muligheder – både inde og ude.
Skal du have solgt først?
Jeg tilbyder en gratis og uforpligtende salgsvurdering af din bolig!