Vestertorp 90, Gjellerup,
7400 Herning
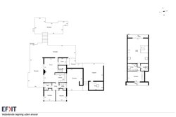
På Vestertorp 90 i Gjellerup finder du denne velindrettede og arkitektonisk spændende villa på hele 182 m², beliggende på en stor og ugeneret grund på 1.163 m² i forskudte niveauer. Ejendommen er fuldmuret, opført i 1979 og byder på en gennemtænkt planløsning på to plan med gode opholdsrum og masser af plads – både inde og ude. Bemærk, at huset løbende er renoveret og senest med nyt tag i 2023!Boligen byder velkommen i entréen, der fungerer som et naturligt knudepunkt i huset. Herfra er der adgang til køkkenet, som er placeret centralt og i åben forbindelse med boligens alrum. Alrummet fremstår lyst og rummeligt med god plads til både spiseafdeling og ophold, og her skabes et naturligt samlingspunkt for hele familien i dagligdagen. De store vinduespartier giver et flot lysindfald og binder inde- og udeliv naturligt sammen på alle årstider.
Stueplanet rummer desuden en værelsesafdeling med gode, regulære værelser samt badeværelse og gangarealer, der sikrer en funktionel hverdag for børnefamilien. Hertil kommer bryggers med egen indgang, som er praktisk placeret i forhold til både køkken og carport
På 1. salen finder du en stor og indbydende stue med god loftshøjde og et behageligt lysindfald. Her er rig mulighed for at indrette en hyggelig opholdsstue, tv-stue eller multirum. Etagen rummer desuden soveværelse, badeværelse og et mindre babyværelse/kontor samt udgang til altan, som giver et flot kig med udsigt over området og haven.
Ejendommen byder på flere terrassemiljøer, som giver mulighed for at nyde solen dagen igennem og skabe forskellige opholdszoner alt efter humør og tidspunkt. Den store grund giver god plads til både leg, beplantning og privat udeliv, samtidig med at haven fremstår meget nemt og overskuelig.
Til boligen hører en rummelig carport på 48 m² med gode anvendelsesmuligheder til parkering, opbevaring eller hobby.
Vestertorp 90 er en bolig med gode kvadratmeter, et spændende udtryk og forskellige indretningsmuligheder – ideel for familien, der ønsker plads, funktionalitet og en rolig beliggenhed i Gjellerup. Hop på stien på den anden side af hækken, så er du ved skolen på fem minutter på cykel. Derudover når du indkøb og en skøn natur på få minutter i bil.
Skal du have solgt først?
Jeg tilbyder en gratis og uforpligtende salgsvurdering af din bolig!